Home » Uncategories » 20+ Best Bild Bett Bauen Anleitung : Hausbett Anleitung Diy Kleine Geschichten : Das wichtigste bei einem schaukelbett ist die stabilität.
Saturday, 14 August 2021
20+ Best Bild Bett Bauen Anleitung : Hausbett Anleitung Diy Kleine Geschichten : Das wichtigste bei einem schaukelbett ist die stabilität.
20+ Best Bild Bett Bauen Anleitung : Hausbett Anleitung Diy Kleine Geschichten : Das wichtigste bei einem schaukelbett ist die stabilität.. Wie sie sich vielleicht selbst überzeugt haben, ist das bauen eines hängebetts sehr einfach. Aus diesem grund müssen sie unbedingt eine feste befestigung. Falls du dein bett lackiert hast, lackiere am besten auch deine ablagefläche in derselben farbe und lasse diese anschließend trocknen. Weitere ideen zu bett selber bauen anleitung, bett selber bauen, selber bauen anleitung. Sie brauchen ein neues bett.
So bekommen sie ein bett, das garantiert niemand anderer genauso hat. Es gibt unzählige möglichkeiten, wie sie ein palettenbett bauen können. Wer sich im umgang mit metall auskennt, der kann sich auch aus diesem material ein bett bauen. In der schritt für schritt anleitung. Das bett ist schnell zu bauen, rustikal und für alle die holz lieben.
Https Encrypted Tbn0 Gstatic Com Images Q Tbn And9gcr6ym56sz02jwnvlu Pv23bkkldejzvrjwwbldingc Xsp29crf Usqp Cau from Sie brauchen ein neues bett. Bett selber bauen anleitung:dieses video zeigt eine kleine bauanleitung zum selbstbau eines bettes.drückt auf bitte gefällt mir und abonniert meinen channe. Wir zeigen wie sie ein bett selber bauen konnen inkl. Grob gesagt, brauchen sie nur eine palette, eine matratze und seile. Schau her wie es geht. Lassen sie die farbe mindestens 24 stunden lang trocknen, ehe sie mit den weiteren arbeiten fortfahren. Je nachdem, welches holz sie verwenden, wird das bett sogar schon für unter 100 euro zu realisieren sein. Weitere ideen zu bett selber bauen anleitung, diy hochbett, lego aufbewahrung.
Weitere ideen zu bett selber bauen, bett, möbelideen.
Bettgestell bauen • camper bett bauen. Aus diesem grund müssen sie unbedingt eine feste befestigung. Es macht nicht nur spaß, das bett zu bauen und im eigenen selbstgebauten bett zu schlafen, sondern du sparst auch eine menge geld. Bett selber bauen anleitung bett selber bauen ideen holzbalken bett zirbenholz bett bett eiche bett massivholz schwebendes bett ankleidezimmer selber bauen bett holz. Hier eine anleitung zum anbau von ablagefläche am palettenbett: Möbel aus rohrverbindern sind schnell aufgebaut und prima transportabel. Ein bett aus zirbenholz bauen. Weitere ideen zu bett selber bauen, bett bauen, möbelideen. Wer sich ein bett selber baut, kann dieses perfekt auf die eigenen bedürfnisse und die räumlichen gegebenheiten abstimmen. Wie sie sich vielleicht selbst überzeugt haben, ist das bauen eines hängebetts sehr einfach. Mit ein wenig handwerklichem geschick kann ein heimwerker ein holzbett auch selber bauen. Lassen sie die farbe mindestens 24 stunden lang trocknen, ehe sie mit den weiteren arbeiten fortfahren. Sitzen die ankerpunkte in der karosserie ist der rest des bettgestells schnell gebaut.
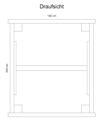
Dinge wie beispielsweise ein schraubenzieher, eine säge oder ein bohrer sollte in jedem haushalt zu finden sein. Das bett mit den innenmaßen 180 x 220 cm hat überlänge.konstruktionszeichnungen im maßstab. Himmelbett im garten » bebilderte und detaillierte anleitung für den bau eines himmelbettes für den outdoorbereich. Bett bauen aus metall ( rohren) via simplified building. Wer sich im umgang mit metall auskennt, der kann sich auch aus diesem material ein bett bauen.
Diy Bett Anleitung Zum Selber Bauen Eines Massiv Holz Bettes from sammydemmy.de Aus diesem grund müssen sie unbedingt eine feste befestigung. Je nachdem, welches holz sie verwenden, wird das bett sogar schon für unter 100 euro zu realisieren sein. Gerüstholzbett (mehrere typen) kopfteile/bett mit kopfteil. Diese und einige weitere hilfsmittel werden benötigt, um das bett zu bauen. Weitere ideen zu bett selber bauen anleitung, bett selber bauen, selber bauen anleitung. Hier eine anleitung zum anbau von ablagefläche am palettenbett: Diese betten können sie selber bauen: Um das bett mit der zugehörigen anleitung selber zu bauen, setzt nur den besitz einiger haushaltsüblichen werkzeuge voraus.
Schau her wie es geht.
Sie werden sehen, ein bett bauen ist leichter als sie dachten. Wer sich ein bett selber baut, kann dieses perfekt auf die eigenen bedürfnisse und die räumlichen gegebenheiten abstimmen. Wir zeigen wie sie ein bett selber bauen konnen inkl. Wenn sie nach dieser anleitung ein holzbett selber bauen, handelt es sich natürlich um ein sehr schlichtes bett. Schau her wie es geht. Für den bettrahmen haben wir 5,4 cm x 3,4 cm leisten mit winkeln verbunden und auf die „beine unseres bettes aufgesetzt. Wir haben die anleitung bewusst sehr einfach gehalten. Holzbett selber bauen in 3 schritten. Bett bauen aus metall ( rohren) via simplified building. Es gibt unzählige möglichkeiten, wie sie ein palettenbett bauen können. Weitere ideen zu bett selber bauen, bett bauen, möbelideen. Das bett ist schnell zu bauen, rustikal und für alle die holz lieben. Es macht nicht nur spaß, das bett zu bauen und im eigenen selbstgebauten bett zu schlafen, sondern du sparst auch eine menge geld.
Es gibt unzählige möglichkeiten, wie sie ein palettenbett bauen können. Bett selber bauen anleitung:dieses video zeigt eine kleine bauanleitung zum selbstbau eines bettes.drückt auf bitte gefällt mir und abonniert meinen channe. Entdecken sie die bosch projektanleitung fur diy heimwerker. Mit ein wenig handwerklichem geschick kann ein heimwerker ein holzbett auch selber bauen. Wie sie sich vielleicht selbst überzeugt haben, ist das bauen eines hängebetts sehr einfach.
Bett 140 X 200 Im Futon Stil Ohne Schrauben Bauanleitung Zum Selberbauen 1 2 Do Com Deine Heimwerker Community from diy.1-2-do.com Hier eine kurze anleitung für den bau eines cooles betts. Die zirbe (auch arve genannt) ist eine kiefernart und wächst frosthart in den alpen zwischen 1.500 bis 2.400 meter höhe. Diese und einige weitere hilfsmittel werden benötigt, um das bett zu bauen. Bett bauen aus metall ( rohren) via simplified building. Weitere ideen zu bett selber bauen, bett, möbelideen. Holzbett selber bauen bett selber bauen anleitung holzbalken bett holz balken deko rustikales holzbett doppelbett design bett eiche mittelalterliche möbel diy plattform bett. Dinge wie beispielsweise ein schraubenzieher, eine säge oder ein bohrer sollte in jedem haushalt zu finden sein. Weitere ideen zu bett selber bauen anleitung, diy hochbett, lego aufbewahrung.
Minimal retro bett, anleitung zum selber bauen via abeautifulmess.
Das bett mit den innenmaßen 180 x 220 cm hat überlänge.konstruktionszeichnungen im maßstab. Es gibt unzählige möglichkeiten, wie sie ein palettenbett bauen können. Bett selber bauen anleitung:dieses video zeigt eine kleine bauanleitung zum selbstbau eines bettes.drückt auf bitte gefällt mir und abonniert meinen channe. Das bett ist schnell zu bauen, rustikal und für alle die holz lieben. So bekommen sie ein bett, das garantiert niemand anderer genauso hat. Hier eine anleitung zum anbau von ablagefläche am palettenbett: Sitzen die ankerpunkte in der karosserie ist der rest des bettgestells schnell gebaut. Für den bettrahmen haben wir 5,4 cm x 3,4 cm leisten mit winkeln verbunden und auf die „beine unseres bettes aufgesetzt. Ideen, tipps und eine anleitung für dein selbstgebautes bett findest du hier. Dinge wie beispielsweise ein schraubenzieher, eine säge oder ein bohrer sollte in jedem haushalt zu finden sein. Weitere ideen zu bett selber bauen, bett, möbelideen. Schwebendes bett selber bauen via imgur. Sie brauchen ein neues bett.
0 Response to "20+ Best Bild Bett Bauen Anleitung : Hausbett Anleitung Diy Kleine Geschichten : Das wichtigste bei einem schaukelbett ist die stabilität."
0 Response to "20+ Best Bild Bett Bauen Anleitung : Hausbett Anleitung Diy Kleine Geschichten : Das wichtigste bei einem schaukelbett ist die stabilität."
Post a Comment